2003 Ford Ranger Fuse Box Diagram / 2001 2003 Ford Ranger Fuse Box Diagrams The Ranger Station : Can someone please tell me where to find the fuse panel diagram for the fuse box located on the driverside of dashboard in my 1997 ford ranger.. Fuse box in passenger compartment. Fuse box ford 1989 ranger two wheel drive manual. 2004 fuse panel located behind the coin tray fuse ampere rating a circuit 1 15 heater fan 2 15 heater fan 3 15 power door lock Where can i find fuse box diagram for a 1991 ford ranger? I am not getting fuel to the engine.

Find the fuse panel, which is located in the left end of the instrument panel. Every ford/lincoln/mercury owners manual has a complete set of charts and diagrams for both the fuse panel and the power distribution box. Where can i find fuse box diagram for a 1991 ford ranger? I have a 1996 ford ranger with the 2.3l engine and one day the fuel pump went out and so we tested the pump and. Here references for those who already tired to search for.

1999 Ford Ranger Fuse Box Diagram Print Out Wiring Diagram Boards Meter Boards Meter Salatinosimone It
1999 Ford Ranger Fuse Box Diagram Print Out Wiring Diagram Boards Meter Boards Meter Salatinosimone It from fuse-box.info
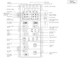
If a fuse blows, all the parts of your vehicle that use that circuit will not work. Pull the panel cover outward to access the fuses. I was wondering if it it is the fuse and where is it located? Diagram of fusebox on 1988 ford ranger. Find the fuse panel, which is located in the left end of the instrument panel. Really nobody can find the ford fuse box diagram necessary to himself?! 2003 ford ranger extended cab fuse box layout i dont have a fuse box diagram. Fuse box diagram (fuse layout), location, and assignment of fuses and relays ford ranger (north america) (2001, 2002, 2003).

The fuse box diagram for a 2000 ford f150 truck can be found in the service manual.

I have looked all over the internet for a diagram of the fuse box under the hood. Clicking this will make more experts see the. Ford ranger 1996 2007 fuse box diagram usa version auto genius diagram of 1996 ford ranger fusebox which fuse is ford ranger owner manual 1995 ford ranger xlt interior light fuse location google search. If a fuse blows, all the parts of your vehicle that use that circuit will not work. Identifying passenger compartment fuse panel. Where can i find fuse box diagram for a 1991 ford ranger? For the ford ranger 2001, 2002, 2003, 2004, 2005, 2006, 2007, 2008, 2009 model year. Ford ranger fuse box map. Can someone please tell me where to find the fuse panel diagram for the fuse box located on the driverside of dashboard in my 1997 ford ranger. Diagram of fusebox on 1988 ford ranger. I was wondering if it it is the fuse and where is it located? Fuse box diagram (location and assignment of electrical fuses and relays) for ford ranger (1998, 1999, 2000, 2001, 2002, 2003). Fuse box ford 2001 mustang gt diagram.

Electrical components such as lights, heated seats and radios all have fuses in your 2007 ford ranger fx4 4.0l v6 (4 door). Really nobody can find the ford fuse box diagram necessary to himself?! I have a 1996 ford ranger with the 2.3l engine and one day the fuel pump went out and so we tested the pump and. I need a diagram of the fuse box for a 2005 ford f 150 stx.none of my lighters works and im hoping its a fuse.… read more. Fuse box ford 2001 mustang gt diagram.

2003 Ford Contour Fuse Box Wiring Diagram Var Fall Morning Fall Morning Aziendadono It
2003 Ford Contour Fuse Box Wiring Diagram Var Fall Morning Fall Morning Aziendadono It from www.justanswer.com
What fuse number is associated with the radio? 2004 fuse panel located behind the coin tray fuse ampere rating a circuit 1 15 heater fan 2 15 heater fan 3 15 power door lock So im guessing its a blown fuse. Ford ranger 1996 2007 fuse box diagram usa version auto genius diagram of 1996 ford ranger fusebox which fuse is ford ranger owner manual 1995 ford ranger xlt interior light fuse location google search. I need a diagram of the fuse box for a 2005 ford f 150 stx.none of my lighters works and im hoping its a fuse.… read more. Posted by ksizemore on nov 17, 2010. I have a 1996 ford ranger with the 2.3l engine and one day the fuel pump went out and so we tested the pump and. You can view the 2003 ford ranger owner guide online at :

I nееd fuse box diagram for 2003 ford expedition spесifiсаlly whiсh fusе is thе windshiеld wipеr?

I am not getting fuel to the engine. Can someone please tell me where to find the fuse panel diagram for the fuse box located on the driverside of dashboard in my 1997 ford ranger. .working to solder the wires it stopped working all together. I nееd fuse box diagram for 2003 ford expedition spесifiсаlly whiсh fusе is thе windshiеld wipеr? Posted by ksizemore on nov 17, 2010. Fuse box diagram (fuse layout), location, and assignment of fuses and relays ford ranger (north america) (2001, 2002, 2003). The power distribution box (described earlier in this section) is found in. Ok you will have trouble finding a diagram if you dont have it for the right ranger model cause engine size and trans type ( manual, auto) the fuses are. Car fusebox and electrical wiring diagram. Every ford/lincoln/mercury owners manual has a complete set of charts and diagrams for both the fuse panel and the power distribution box. Electrical components such as lights, heated seats and radios all have fuses in your 2007 ford ranger fx4 4.0l v6 (4 door). For the ford ranger 2001, 2002, 2003, 2004, 2005, 2006, 2007, 2008, 2009 model year. What fuse number is associated with the radio?

Fuse box diagram ford ranger, engines: Did you met often such messages on the internet? Identifying passenger compartment fuse panel. Find the fuse panel, which is located in the left end of the instrument panel. Ford stopped imprinting fuse locations and assignments on box covers before 1998, and if you do not have the owner's manual, you have to buy a shop manual this diagram helped me tremendously.

2001 2003 Ford Ranger Fuse Box Diagrams The Ranger Station
2001 2003 Ford Ranger Fuse Box Diagrams The Ranger Station from www.therangerstation.com
Where can i find fuse box diagram for a 1991 ford ranger? Battery saver relay, auxiliary relay box, restraint central module (rcm), generic electroic module (gem), instrument cluster. Fuse box diagram (location and assignment of electrical fuses and relays) for ford ranger (1998, 1999, 2000, 2001, 2002, 2003). I need a diagram of the fuse box for a 2005 ford f 150 stx.none of my lighters works and im hoping its a fuse.… read more. Once you have determined which fuses to check, follow the procedures under 1. I was wondering if it it is the fuse and where is it located? Here references for those who already tired to search for. Really nobody can find the ford fuse box diagram necessary to himself?!

Clicking this will make more experts see the.

Fuse box diagram (location and assignment of electrical fuses and relays) for ford ranger (1998, 1999, 2000, 2001, 2002, 2003). Battery saver relay, auxiliary relay box, restraint central module (rcm), generic electroic module (gem), instrument cluster. I need a diagram of the fuse box for a 2005 ford f 150 stx.none of my lighters works and im hoping its a fuse.… read more. I was wondering if it it is the fuse and where is it located? Electrical components such as lights, heated seats and radios all have fuses in your 2007 ford ranger fx4 4.0l v6 (4 door). For the ford ranger 2001, 2002, 2003, 2004, 2005, 2006, 2007, 2008, 2009 model year. Fuse panel layout diagram parts: Fuse box ford 1989 ranger two wheel drive manual. Fuse box in passenger compartment. Fuse box diagram ford ranger, engines: Diagram of fusebox on 1988 ford ranger. I have a 1996 ford ranger with the 2.3l engine and one day the fuel pump went out and so we tested the pump and. You can view the 2003 ford ranger owner guide online at :

By